物件詳細 マンション 八戸市
detailsDETAILS
マンション グランドソレーユ1階105号室
情報更新日:2026-05-23
- 所在地
- 青森県 八戸市 根城三丁目
- 種別/間取り
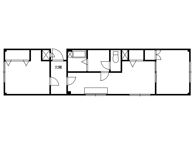
- マンション/2LDK
- 月額賃料
- 45,000円/月
- 専有面積
- 60.67㎡
- バルコニー面積
- ─
- 共益費
- ─
- 管理費
- ─
- 敷金
- 2ヶ月 90,000円
- 礼金
- ─
本物件の内容や画像等は全て現況優先となります。
各画像は参考図となります。
| 交通機関 | 市営バス 根城三丁目バス停 徒歩 | ||
|---|---|---|---|
| 学区 | |||
| 詳細間取 | 2LDK (洋6帖×2、LDK10帖) | ||
| 周辺施設 | |||
| 駐車場 | 敷地内 無料 | 建物構造 | RC造 地上3階建 |
| 駐車場複数台 | 不可 | 主要採光方向 | 不明 |
| 仲介料 | 49,500円 (1ヶ月相当) | 周辺環境 | |
| 保険又は共済 | 要加入 | 入居可能日 | 即入居可 |
| 保証金 | 築年月 | 昭和53年6月 | |
| 権利金 | 取引態様 | 仲介 | |
| 保証会社 | 利用必須 アーク賃貸保証 月額合計賃料の80% | ||
| その他費用 | |||
| トイレ | 洋式 独立 水洗 暖房便座 洗浄機能付 | 風呂 | 有 シャワー有 給湯式 |
| 設備 | 上水道設備(公営) 下水道設備 給湯(ガス) 洗面化粧台(独立)(シャワー付) LPガス TV付インターホン エアコン 下駄箱 駐輪場 洗濯機置場 物置 二重サッシ 網戸 照明器具 CATV クローゼット | ||
| 備考 |
保険加入2年間 八戸 賃貸物件 根城 全面リフォーム済み!八戸 賃貸物件 根城 八戸市の賃貸アパート・賃貸マンション・不動産探し シャーメゾンショップ 普通賃貸借 当社のホームページはこちら! ※同業他社による客付け可 |
||
| 取扱業者 |
(有)オフィスエステート 青森県知事免許(7)第2735号 青森県八戸市売市1丁目11-5 TEL:0178-46-1616 FAX:0178-22-5620 (公社)青森県宅地建物取引業協会会員 東北地区不動産公正取引協議会加盟事業者 |
||












